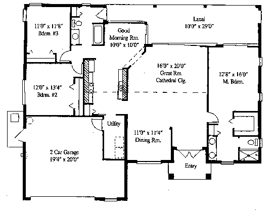
Coral Reef Series

Elevation View | Interior Photos | Home Page

e Page.